Objektart
Adresse
Objektdaten
Informationen
Ausstattung
Details
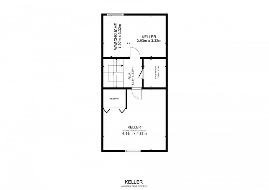
Dieses gepflegte Reihenmittelhaus in Bochum / Westenfeld aus dem Baujahr 1987 überzeugt mit einer durchdachten Raumaufteilung, wohnlichem Ambiente und attraktiven Zusatzflächen. Auf ca. 97 m² Wohnfläche, verteilt auf zwei Etagen, bietet die Immobilie ein komfortables Zuhause für Paare oder kleine Familien. Ergänzt wird das Platzangebot durch einen voll nutzbaren Keller von ca. 50 m².
Bereits beim Betreten vermittelt die hochwertige Aluminiumhaustür in Anthrazit einen modernen, wertigen Eindruck. Im Erdgeschoss erwartet Sie ein hell gestrichenes Wohnzimmer mit ansprechendem Parkettboden. Hochwertige Glastüren unterstreichen den freundlichen, offenen Charakter der Wohnräume.
Im Obergeschoss befinden sich zwei Schlafzimmer, wobei zwei ehemals separate Kinderzimmer zu einem großzügigen Raum zusammengelegt wurden. Das Obergeschoss ist mit hellem Laminat ausgestattet und wirkt insgesamt angenehm lichtdurchflutet. Ein Badezimmer komplettiert diese Etage.
Das Dachgeschoss ist Wohnraum ähnlich ausgebaut. (nicht in der Wohnfläche enthalten)
Auch im Außenbereich zeigt sich das Haus von seiner besten Seite: Ein gepflegter Garten mit hochwertiger Terrasse lädt zum Verweilen ein. Ein kleines Gartenhaus bietet praktischen Stauraum für Gartenmöbel und Gerätschaften. Das Grundstück umfasst insgesamt mit Garage und Zuwegung ca. 195 m² und rundet das stimmige Gesamtbild dieser Immobilie ab.
In diesem schönen Reihenhaus, können Sie mit geringem renovierungsbedarf kurzfristig einziehen.
Rufen Sie noch heute an und verabreden Sie einen Besichtigungstermin.
- Keller
- zwei Etagen
- Dachgeschoss, Wohnraum ähnlich zum Hobbyraum ausgebaut
- Böden: Parkett, Fliesen, Laminat
- Gaszentralheizung aus 2010
- Gäste WC
- Badezimmer
- gepflegter Garten mit hochwertiger Terrasse und kleinem Gartenhaus
- Moderne Aluminiumhaustür in Anthrazit
- Holzfenster mit Isolierdoppelverglasung
- Garage
- Außenwände mit 6 cm Dämmung
Dieses charmante Reihenmittelhaus befindet sich im begehrten Stadtteil Westenfeld in Bochum. Die Lage bietet eine hervorragende Anbindung an die Innenstadt, die lediglich etwas über 4 Kilometer entfernt ist. Familienfreundlich gelegen, befinden sich ein Kindergarten und eine Grundschule in fußläufiger Entfernung. Weiterführende Schulen, darunter eine Realschule, eine Gesamtschule und ein Gymnasium, sind ebenfalls bequem erreichbar.
Die hervorragende Verkehrsanbindung ist durch die Nähe zu den Autobahnen A40 und A448 gewährleistet, die einen schnellen Zugang zu den umliegenden Städten ermöglichen. Zudem sorgt eine nahegelegene Straßenbahnlinie für eine unkomplizierte Verbindung in das Zentrum von Bochum.
Diese Umgebung bietet eine ideale Verbindung aus urbanem Leben und angenehmer Wohnatmosphäre, die sowohl Komfort als auch Bequemlichkeit verspricht.
Alle Angaben ohne Gewähr
Ansprechpartner
Mobil: 00491734316499
info@sr-immobilien-ruhr.de
Energieausweis (Bedarfsausweis)
153,72 kWh / (m²*a) Endenergiebedarf
153,72 kWh / (m²*a) Endenergiebedarf
153,72 kWh / (m²*a) Endenergiebedarf
Weitere Informationen
| Wesentlicher Energieträger | Erdgas schwer |
| Energieausweis gültig bis | 2036-03-22 |
| Energieausweis Jahrgang | ab dem 1.5.2014 |
| Energieausweis Werteklasse | E |
| Energieausweis Baujahr | 1987 |
| Energieausweis Gebäudeart | Wohngebäude |
| Heizung | Zentralheizung |
| Befeuerung | Gas |
Ich bin damit einverstanden, dass mir Karten von Google angezeigt werden. Es gelten die Datenschutzbedingungen von Google (https://policies.google.com/privacy).
Ich bin einverstanden